
Maabela, Seeb
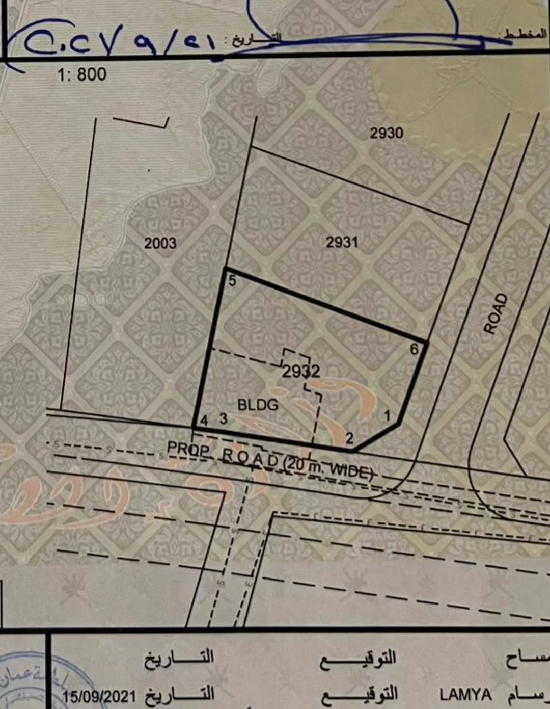
A prime 600 sqm residential corner plot for sale in North Maabela, conveniently located adjacent to Al Baraka Palace. The land is situated in an excellent location with full services available and is designated for a two-story residential building. Plot number 2932, Phase 1, located on a 20m wide proposed road.





Maabela, Seeb
A prime 600 sqm residential corner plot for sale in North Maabela, conveniently located adjacent to Al Baraka Palace. The land is situated in an excellent location with full services available and is designated for a two-story residential building. Plot number 2932, Phase 1, located on a 20m wide proposed road.